Graceland Flats

 

Residential / Commercial

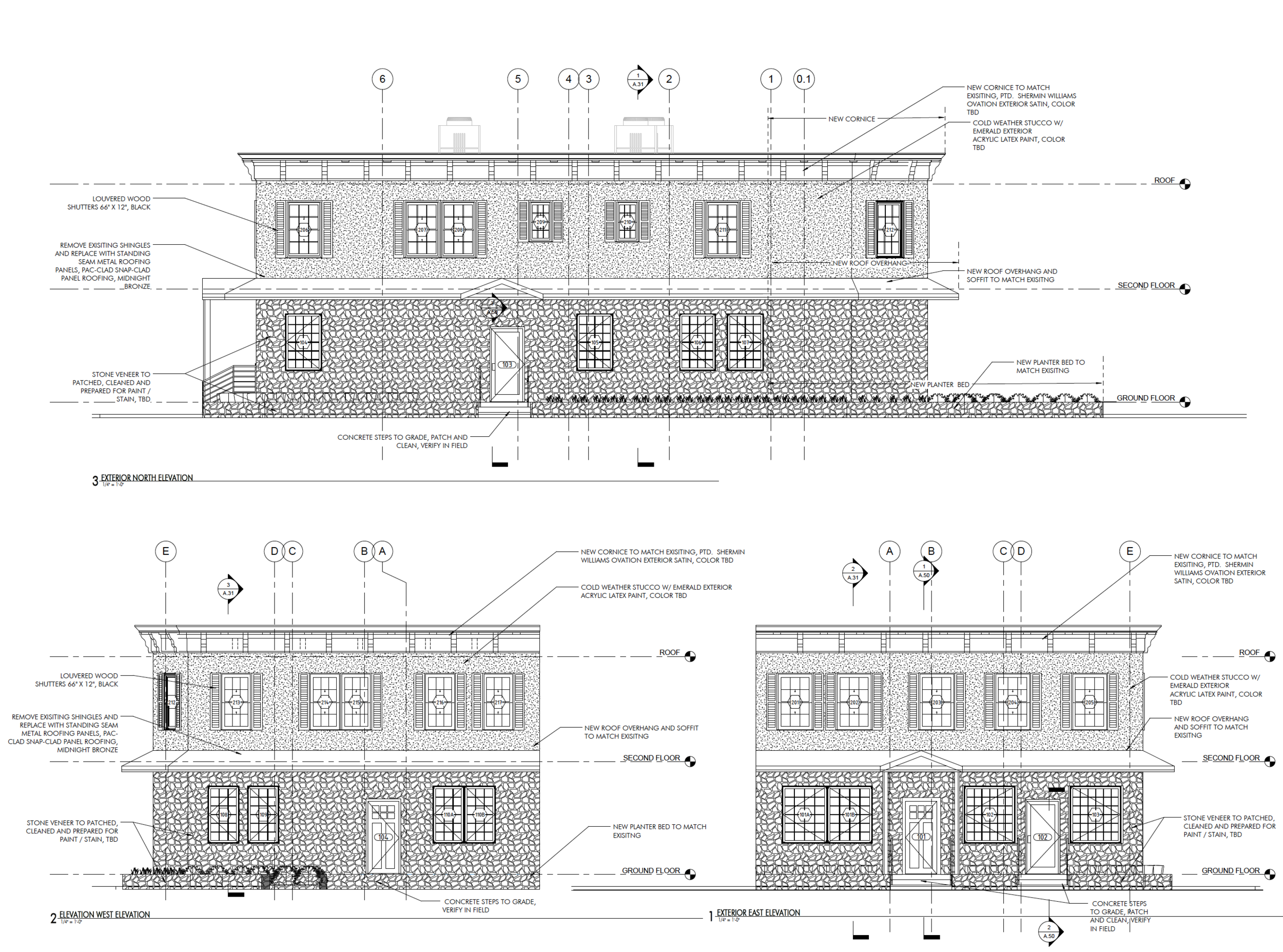
Adaptive Reuse of existing building to mixed use – Residential and Commercial

Graceland Flats
 
Before

Before

Graceland Flats Before 2
Graceland Flats Before 4
Graceland Flats Before 3
Graceland Flats Before 4
 
After

After

Graceland Flats After 2
Graceland Flats After 3
Graceland Flats After 4
Graceland Flats After 5
Next
Next

Napoli Place